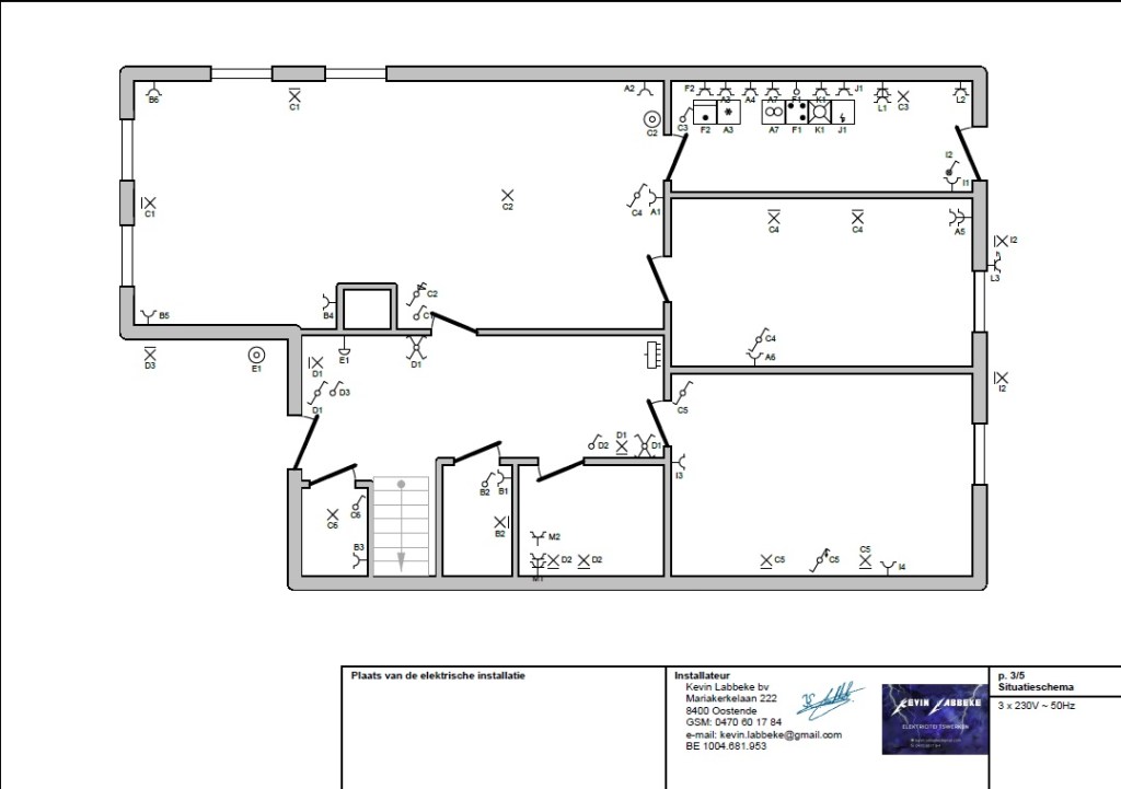
• Elke installatie vereist een gedetailleerd en correct plan, wat wettelijk verplicht is en van grote waarde blijkt wanneer er onderhoud of aanpassingen nodig zijn. Dit kan worden opgesteld voor zowel residentiële als industriële installaties.
Trikker


See Electrical

